MapInfo Pro

 View Only
  • 1.  MapInfo Monday: Offset Object Multiple Times

    Employee
    Posted 02-02-2026 06:07

    MapInfo Pro includes a couple of tools that can offset an existing object or create parallels from it.

    One thing I have often missed is the ability to offset, in this specific case, a (poly)line multiple times. The Offset function offsets the existing objects and doesn't create a copy, so it can't create multiple offset copies.

    It seems that creating multiple copies is not a wish I was alone with. @Dag Hallén had a similar request, which he asked about in this discussion. So, I built this into DrawTools.

    Making Multiple Offset Copies

    I use this quite frequently when I'm creating drawings for my house. For example, when I create measurement lines.

    Here's an example.

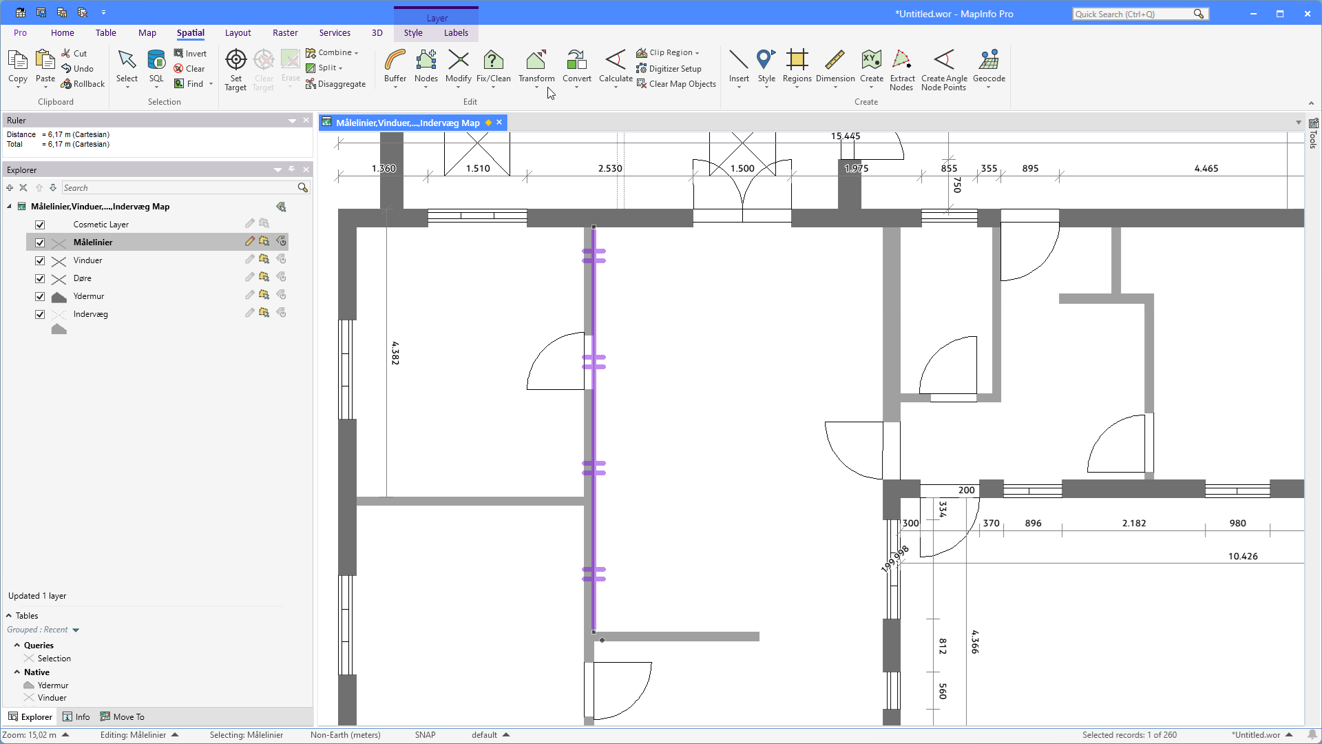
    First, I draw a line that follows the existing wall from one wall to another. Then I select this new line.

    image
    You can see the selected line in the map. It goes vertically from one wall to another.
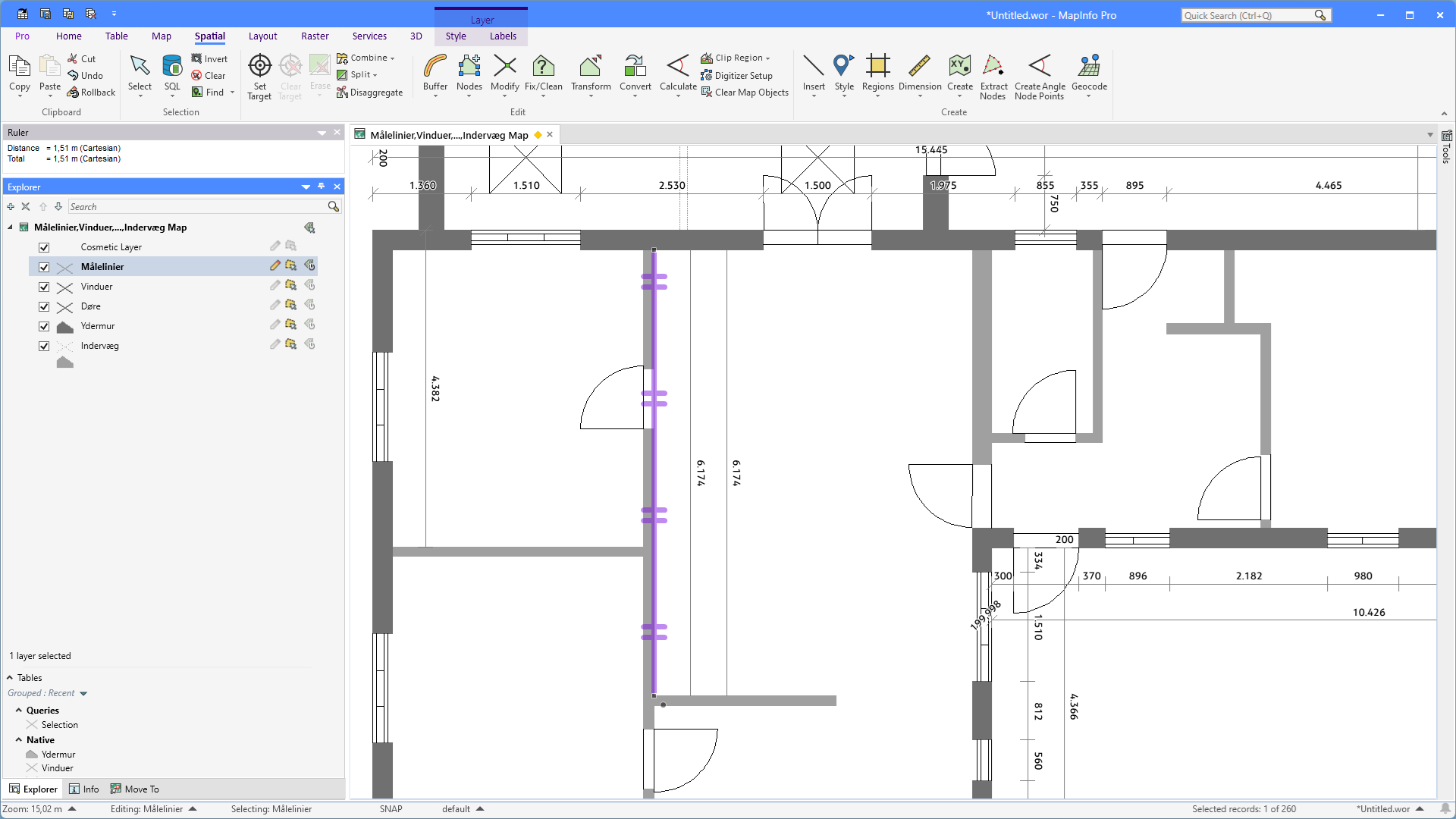
    Now, the measurement lines are offset from the wall by a given distance, and typically, I have a couple of these lines. One that shows the full length, and another that shows the length of the individual wall and doors.
    I now select the Create Offset Copies control from the Transform dropdown on the Spatial tab.
    image
    Now, I draw a line representing the direction and distance that I want to use when creating the offset copies.
    I use snap to snap to the existing wall in my drawing to make sure I get the right distance and/or direction.
    image
    When I have drawn my line, the Create Multiple Offset dialog pops up, asking me to check the values.
    image
    I can enter the number of copies I want to create, and I can change the distance and/or the direction that I specified when I drew the line. Often it's necessary to change one or the other. Typically, you want to specify a distance that is different from the line you drew, especially if you snap to existing lines.
    The result can be seen below.
    image
    Now I can modify these lines further to show the measurements for the specific wall in my house.
    Another example where offsetting one line multiple times is when you want to create a grid. Below is an example of grid lines created with Create Offset Copies.
    image
    Where would you use the Create Offset Copies function?


    ------------------------------
    Peter Horsbøll Møller
    Principal Presales Consultant | Distinguished Engineer
    Precisely | Trust in Data
    ------------------------------


  • 2.  RE: MapInfo Monday: Offset Object Multiple Times

    Posted 02-02-2026 07:20

    Hi Peter

    What is the current version of DrawTools?

    The MarketPlace indicates 2.0.3.0 and last published Dec 12,2018  - which I suspect is incorrect.



    ------------------------------
    John Ievers
    CDR Group Limited
    Hope Valley, United Kingdom
    ------------------------------



  • 3.  RE: MapInfo Monday: Offset Object Multiple Times

    Employee
    Posted 02-02-2026 07:44

    I see DrawTools 3.2.0 in the MapInfo Marketplace. That's the latest

    image


    ------------------------------
    Peter Horsbøll Møller
    Principal Presales Consultant | Distinguished Engineer
    Precisely | Trust in Data
    ------------------------------



  • 4.  RE: MapInfo Monday: Offset Object Multiple Times

    Posted 02-09-2026 07:25

    Hi Peter

    My Marketplace also now shows the latest version. A gremlin perhaps.... 😉



    ------------------------------
    John Ievers
    CDR Group Limited
    Hope Valley, United Kingdom
    ------------------------------